
Progetti
Costruzione di nuove opere
Opera residenziale
Costruzione fabbricato residenziale
Via della Foscherara, Bologna | 2018 - 2019
Progettazione e direzioni lavori strutturali per la costruzione di fabbricato ad uso residenziale abitativo costituito da quattro piani fuori terra. Realizzato con struttura antisismica a telai in cemento armato e muratura di tamponamento in laterizio.
Opera residenziale e di servizio
Costruzione fabbricato residenziale
via Garibaldi, Casalecchio di Reno (BO) | opera in corso di costruzione
Progettazione e direzioni lavori strutturali per la costruzione di fabbricato a uso residenziale e direttivo costituito da sei piani fuori terra e uno interrato con antistante piazza a uso pubblico. Realizzato con struttura antisismica a telai in cemento armato e muratura di tamponamento in laterizio.
Opera residenziale
Ristrutturazione fabbricato residenziale
via Leandro Alberti, Bologna | 2018-2019
Progettazione e direzioni lavori strutturali per la ristrutturazione completa del fabbricato a uso residenziale abitativo costituito da tre piani fuori terra ed uno seminterrato. Realizzato con struttura antisismica a telai in cemento armato e utilizzo della muratura esistente con funzione di tamponamento esterno. Il fabbricato è fondato su pali.
Opera residenziale
Costruzione fabbricato residenziale
via Vallescura, Bologna| 2008-2010
Progettazione e direzioni lavori strutturali per la costruzione di fabbricato ad uso residenziale abitativo costituito da quattro piani fuori terra e due interrati ad uso cantina-autorimessa. Realizzato con struttura antisismica a telai in cemento armato e muratura di tamponamento in laterizio.
Opera residenziale
Costruzione fabbricato residenziale
Contrada Gioi, Noto (SR) I 2010-2011
Progettazione architettonica di fabbricato unifamiliare ad uso residenziale denominato “La Garullaria”.
Opera di servizio
Ampliamento scuola materna
via della Battaglia, Bologna | 2007-2009
Progettazione e direzioni lavori strutturali per la costruzione di fabbricato a uso scolastico costituito da due piani fuori terra ed uno interrato. Realizzato con struttura antisismica a telai in cemento armato e muratura di tamponamento in laterizio.
Opera residenziale
Costruzione fabbricato residenziale
via Libia, Bologna | 2007-2008
Progettazione e Direzioni lavori strutturali per la costruzione di fabbricato ad uso residenziale abitativo costituito da quattro piani fuori terra ed uno interrato. Realizzato con struttura antisismica a telai in cemento armato e muratura di tamponamento in laterizio presenta un corpo aggiuntivo in acciaio realizzato a ponte sul fabbricato adiacente.
Opera di servizio
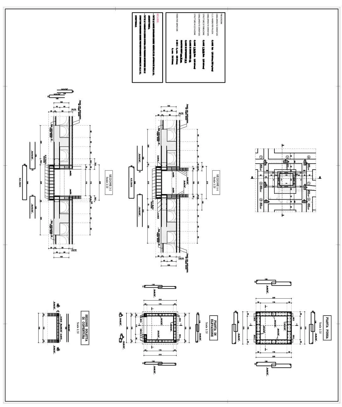
Costruzione autorimessa interrata
Piazza Stracciari, Casalecchio di Reno (BO) | 2006
Progettazione e direzione lavori strutturale di autorimessa interrata realizzata con strutture in cemento armato per il ricovero di automezzi privati e sovrastante piazza carrabile a uso pubblico.
Opera residenziale
Costruzione fabbricato residenziale
via Garganelli, località Pian di Macina, Pianoro (BO) | a2007-2009
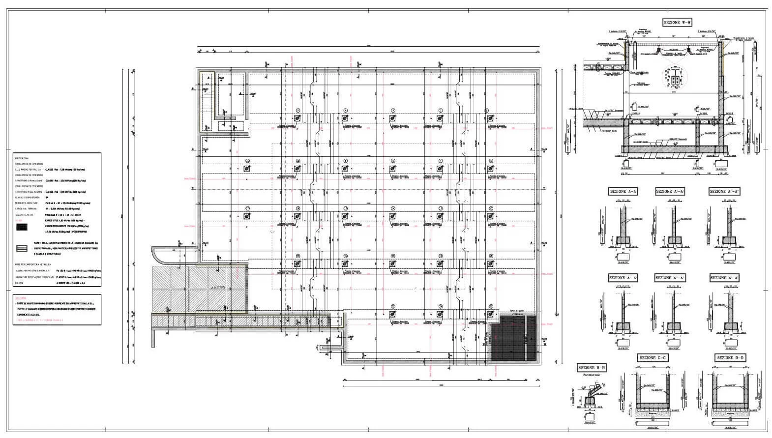
Progettazione e direzioni lavori strutturali per la costruzione di n. 3 fabbricati a uso residenziale costituiti da cinque piani fuori terra e uno interrato. Individuati come corpi C-D ed E sono realizzati con strutture antisismiche a telai in cemento armato e muratura di tamponamento in laterizio.
Opera residenziale
Costruzione fabbricato residenziale
Via Risorgimento, Pianoro (BO) | 2006-2007
Progettazione e direzioni lavori strutturali per la costruzione di fabbricato a uso residenziale abitativo costituito da quattro piani fuori terra e uno interrato. Realizzato con struttura antisismica a telai in cemento armato e muratura di tamponamento in laterizio.
Costruzione fabbricato residenziale
Via Mattei, Bologna I 1998-99
Progettazione e Direzioni lavori strutturale per la costruzione di fabbricato ad uso residenziale abitativo costituito da sette piani fuori terra ed uno interrato. realizzato con struttura a telai in cemento armato e muratura di tamponamento, fondazioni profonde su pali.
Opera residenziale
Costruzione fabbricato residenziale
Via Lombardia, Bologna | 2002
Progettazione e direzione lavori strutturali per la costruzione del fabbricato a uso residenziale e commerciale (negozi), costituito da sei piani fuori terra e due piani interrati. Realizzato con struttura a telai spaziali in cemento armato a travi e pilastri, muratura di tamponamento a chiusura.